- 石籠網
- 固賓籠
- 鉛絲籠
- 賓格石籠
- 石籠格賓
- 石籠網墊
- 石籠擋墻
- 鉛絲網籠
- 鉛絲石籠
- 石籠網箱
- 六角網箱
- 石籠網袋
- 固賓石籠
- 石籠護坡網
- 鍍鋅石籠網
- 加筋石籠網
- 電焊石籠網
- 五擰石籠網
- 包塑石籠網
- 石籠網護腳
- 落石防護網
- 鍍鋅加筋網
- 景觀石籠網
- 高爾凡石籠網
- 鉛絲石籠護墊
- 六角石籠網箱
- 焊接石籠網箱
- 矽膠涂塑石籠網
- 生態石籠網擋墻
- 生態護坡網石籠...
- 鍍鋅石籠
- 格賓網
- 格賓
- 賓石籠
- 格賓墊
- 格賓網-1
- 格賓箱
- Gabion
- 格賓網籠
- 格賓網墊
- 格賓籠網
- 賓格網籠
- 格檳石籠
- 格賓石籠
- 格濱石籠
- 賓格籠石箱
- 格賓網護墊
- 覆塑格賓網
- 生態格賓擋墻
- 熱鍍鋅格賓網
- 高熱鍍鋅格賓墊
- 雙隔板格賓網墊
- 鋅鋁合金格賓網
- 鍍高爾凡格賓網
- 鍍鋁合金格賓網
- 8號線格賓籠價...
- 5%鋁鋅合金賓...
- 堤坡防護格賓網...
- 矽膠涂塑合金絲...
- 高耐磨有機圖層...
- 雷諾護墊
- 綠濱墊
- 五絞網墊
- 綠格網墊
- 格賓護墊
- 生態網墊
- 護坡格賓網墊
- 雷諾石籠護墊
- 格賓石籠護底
- 覆塑雷諾護墊
- 五絞生態網墊
- 鍍鋅雷諾護墊
- 生態格網護墊
- 熱鍍鋅雷諾護墊
- 雙隔板雷諾護墊
- 高爾凡雷諾護墊
- 鋅鋁合金雷諾護...
- 鍍高爾凡雷諾護...
- 生態固濱石籠網...
- 鍍高爾凡格賓護...
- 鍍高爾凡覆塑格...
- 鍍高爾凡雙隔板...
- 覆塑五絞生態固...
- 聯系電話:0318-7899911
- 聯系手機:15531868633
- 聯系地址:河北安平正港路898號


寧夏客戶訂購雙隔板雷諾護墊于2019年8月06日發貨
雙隔板雷諾護墊與單隔板雷諾護墊有什么區別?
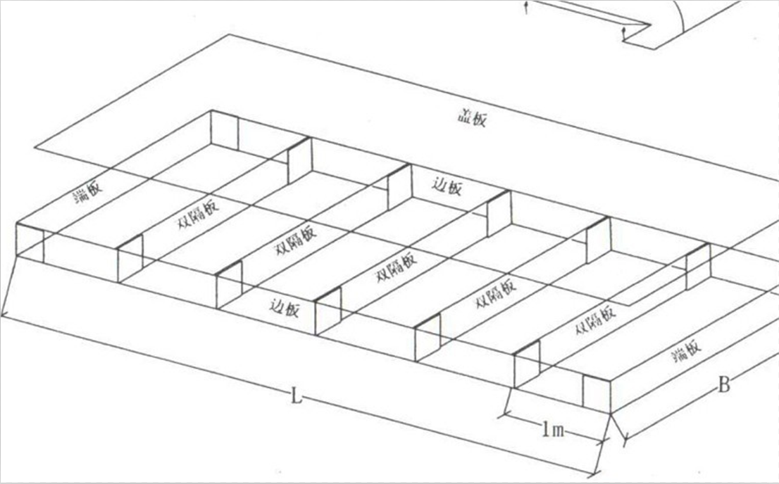
1、制作工藝不同:雙隔板雷諾護墊的網箱為一體成型網箱,除了蓋子,箱體其他部分是由一張網片折疊而成,即除蓋板外,邊板、端板、及底板間不可分割。而單隔板雷諾護墊采用組裝方式,蓋板,邊板,端板,底板單獨生產組裝成網箱,各部分用螺旋鋼絲纏繞捆綁,網箱所有邊絲均采用粗絲加強格賓網的強度。
2、雙隔板雷諾護墊比單隔板雷諾護墊制作過程相對比較省時,但是雙隔板雷諾護墊比單隔板雷諾護墊穩定性更好
3、相同尺寸的網箱,單隔板雷諾護墊比雙隔板雷諾護墊展開面積要少
雙隔板雷諾護墊由低碳鋼絲再經過冷鍍鋅、熱鍍鋅、鋅鋁合金防腐之后,再經過重型織網機編織成的六邊形雙絞格網,其厚度在0.17-0.3m的網箱,長度方向每間隔1m采用雙隔板隔成獨立的單元,雙隔板雷諾護墊為一次成型生產,除蓋板外,邊板、端板、隔板及底板由一張連續不斷的網面組成,不可采用獨立的雙層折疊網面通過絞合在底板上作為雙隔板。
雷諾護墊用途:
一、控制和引導河流及洪水:格賓網可使河床河岸得到永久性保護,有效防止水流沖刷河岸使其破壞,引發洪水泛濫,導致生命財產遭受大量損失,水土大量流失。
??二、渠道、運河、河床:天然河流改造和人工渠道開挖時,格賓網可對河岸或河床起到有效的永久性保護,它還能控制水的流量,防止水流失,特別是在環境保護和水質保持上,具有極佳的功效。
??三、護岸護坡:石籠格賓網結構應用與江河湖岸和其坡腳防護方面是非常成功的案例,它充分發揮了生態格網的優點,達到其他方法無法實現的理想效果。
雷諾護墊參數
(1)孔徑:60*80、80*100、80*120、100*120、120*15、150*180、70*90
其中雙線絞合部分的長度不得小于50mm.以保證絞合部分鋼絲的金.0屬鍍層和PVC鍍層不受破壞。
(2)絲徑:石籠網分三種絲徑—網絲、邊絲、綁絲
1.網絲的范圍在2mm-4mm
2.邊絲一般大于網絲,粗0.5mm-1mm
3.綁絲一般小于網絲,常見的以2.2mm居多
(3)鋼絲拉力:不小于350Mpa
固濱籠擋墻護岸安平縣昊昌絲網制造有限公司[聯系電話:15531868633}是固濱籠擋墻護岸,石籠網,格賓網,雷諾護墊,鉛絲石籠的專業生產廠家,省優產品,馳名商標,高新技術企業,專利產品.先進流水線,價格合理,質量保證.
Tags:鍍鋅格賓籠專業生產廠家|-覆塑雷諾護墊價格|鍍鋅加筋網廠家|
包塑pvc雷諾護墊安平縣昊昌絲網制造有限公司[聯系電話:15531868633}是包塑pvc雷諾護墊的專業生產廠家,省優產品,馳名商標,高新技術企業,專利產品.先進流水線,價格合理,質量保證.
Tags:鉛絲籠護堤專業生產廠家|包塑pvc雷諾護墊廠家|綠濱墊廠家價格|
三維植生麥克墊三維植生麥克墊屬于組合式產品,土工材料與綠格網相結合而成,三維植生麥克墊兼具土工材料及綠格網的優點.土工材料為聚丙烯材質,三維植生麥克墊通常選用防腐性能好的鍍10%鋁鋅合金鋼絲.三維植生麥克墊被廣泛應用于生態自然恢復,市政景觀工程,河道邊坡防護,公路、鐵路路基坡面穩固工程.
Tags:格賓石籠擋墻護坡專業生產廠家|格賓網墊價格|鍍高爾凡格賓網廠家|
雙隔板石籠護墊安平縣昊昌絲網制造有限公司[聯系電話:15531868633}是雙隔板石籠護墊,雙隔板石籠護墊廠家,雙隔板石籠護墊價格的專業生產廠家,省優產品,馳名商標,高新技術企業,專利產品.先進流水線,價格合理,質量保證.
Tags:鍍高爾凡格賓邊坡防護專業生產廠家|雷諾護墊擋墻網價格|雙隔板合金鋼絲護坡技術參數|



